Modèle Alina Mono 71 m² - 3 chambres
Nos experts se tiennent à votre disposition pour échanger avec vous !
Nous contacterUn projet ? Ce modèle est disponible avec terrain
Voir nos offresCaractéristiques
À propos de cette maison
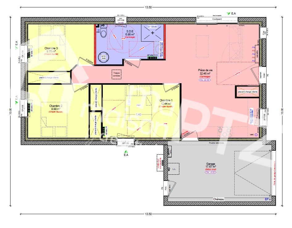
Le modèle Alina Mono séduit par son design contemporain avec sa toiture monopente, tout en conservant une conception pensée pour le confort au quotidien et la conformité aux normes PMR (personnes à mobilité réduite).




Cette maison de plain-pied de 71 m² propose trois chambres avec emplacements placards prévus, une salle d’eau avec WC accessible, ainsi qu’un séjour lumineux de 32 m², offrant un bel espace de vie ouvert. Un placard pratique est intégré à l’entrée, optimisant le rangement dès l’accueil.
Le tout est complété par un garage de 17 m², idéal pour le stationnement ou le stockage.
Accessible, fonctionnelle et résolument moderne, Alina Mono est le choix idéal pour les familles, les seniors ou les investisseurs à la recherche d’un bien durable et conforme aux exigences d’accessibilité.
Visuels non contractuels. Maison conforme à la règlementation RE 2020 sous réserve de l’implantation et de l’exposition du projet de construction sur le terrain.