Modèle Atéa 2 67 m² - 2 chambres
Atéa 2
À partir de 120 160€*
Vous aimez ce modèle de maison ?
Nos experts se tiennent à votre disposition pour échanger avec vous !
Nous contacterUn projet ? Ce modèle est disponible avec terrain
Voir nos offresCaractéristiques
Surface : 67 m²
Nombre de chambres : 2
Nombre de salle(s) de bains : 1
Garage : oui
Type de bien
Maison
Surface min.
67 m²
Consommation énergétique
50
Nombre de pièce(s)
3
Nombre de chambre(s)
2
Nombre de chambre(s) au RDC
2
Nombre de salle(s) de bain
1
Garage
oui
50
À propos de cette maison
Envie de découvrir *votre future maison en détail ?*
Téléchargez le plan
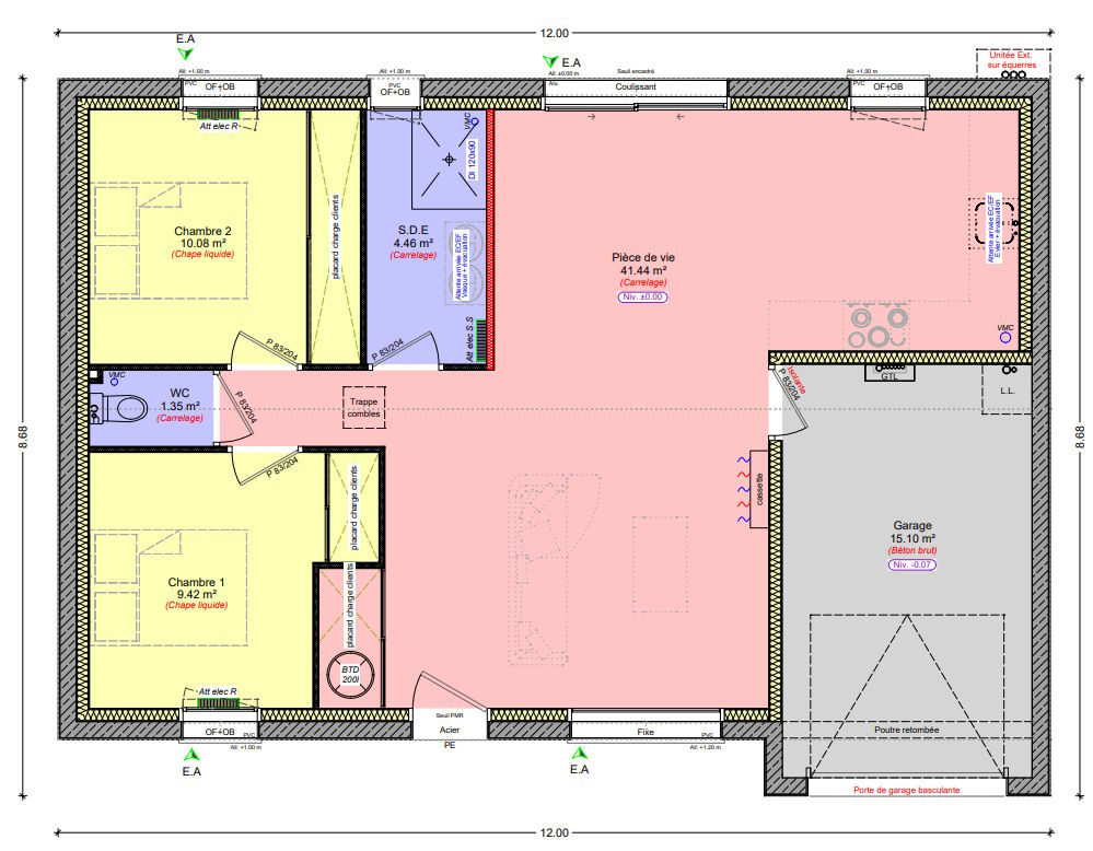
Le modèle Atéa 2 est une maison de plain-pied de 67 m², conçue pour allier accessibilité, fonctionnalité et confort.




Elle comprend deux chambres avec emplacements prévus pour placards, une salle d’eau, un WC séparé, ainsi qu’une lumineuse pièce de vie de 41 m². L’entrée est équipée d’un emplacement prévu pour le placard, pratique pour le rangement du quotidien.
Compacte, bien pensée et accessible à tous, la maison Atéa 2 est idéale pour une résidence principale durable et fonctionnelle.
Visuels non contractuels. Maison conforme à la règlementation RE 2020 sous réserve de l’implantation et de l’exposition du projet de construction sur le terrain.