Modèle Eden Mono 115 m² - 4 chambres
Nos experts se tiennent à votre disposition pour échanger avec vous !
Nous contacterUn projet ? Ce modèle est disponible avec terrain
Voir nos offresCaractéristiques
À propos de cette maison
Avec Ma Maison PTZ by Cre’actuel, vous profitez du lancement d’une nouvelle marque portée par 20 ans d’expertise dans la construction de maisons individuelles.
Née au sein du Groupe Cre’actuel, Ma Maison PTZ a été conçue pour répondre aux attentes des primo-accédants et des investisseurs, en proposant des modèles de maisons optimisés, alliant confort, superficie bien pensée, respect des normes environnementales et budget maîtrisé.
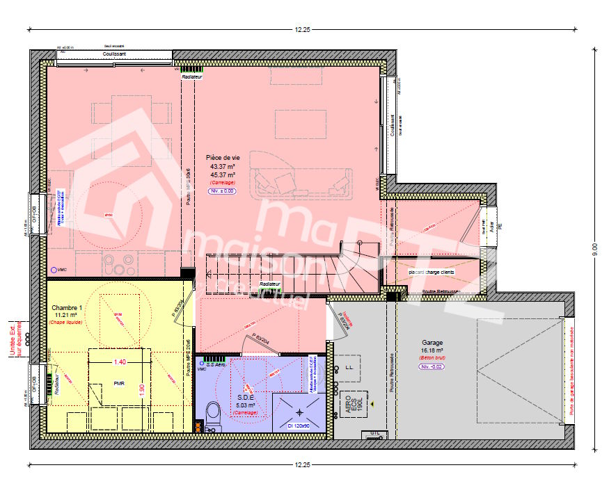
Découvrez notre modèle Eden, une maison de 115 m² avec toit monopente, spécialement conçue pour offrir à votre famille un cadre de vie fonctionnel, lumineux et durable.





Au rez-de-chaussée, vous découvrez une spacieuse pièce de vie de 43 m², baignée de lumière naturelle grâce à deux grandes baies vitrées. Ce niveau comprend également une chambre, une salle de bains, des toilettes indépendants, ainsi qu’un garage de 16 m².
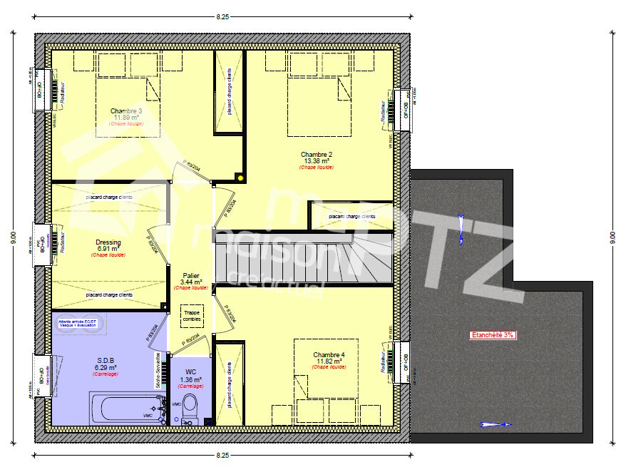
À l’étage, le palier dessert trois belles chambres équipées d’emplacements pour placards, un dressing, une seconde salle de bains, ainsi que des toilettes séparés, pour plus de confort au quotidien.
Visuels non contractuels. Maison conforme à la règlementation RE 2020 sous réserve de l’implantation et de l’exposition du projet de construction sur le terrain.