Modèle Nera Mono 79 m² - 3 chambres
Nos experts se tiennent à votre disposition pour échanger avec vous !
Nous contacterUn projet ? Ce modèle est disponible avec terrain
Voir nos offresCaractéristiques
À propos de cette maison
Le modèle Nera Mono est une maison optimisée de 79 m² pour répondre à de nombreuses configurations de terrain, idéale pour les familles ou les primo-accédants à la recherche d’un équilibre entre confort et fonctionnalité.





Pensée pour optimiser chaque mètre carré, la Nera allie modernité, praticité et budget maîtrisé.
Au rez-de-chaussée, vous êtes accueilli dans une pièce de vie en L de 34 m², lumineuse et conviviale. Ce niveau comprend également un WC, et un garage de 15 m².
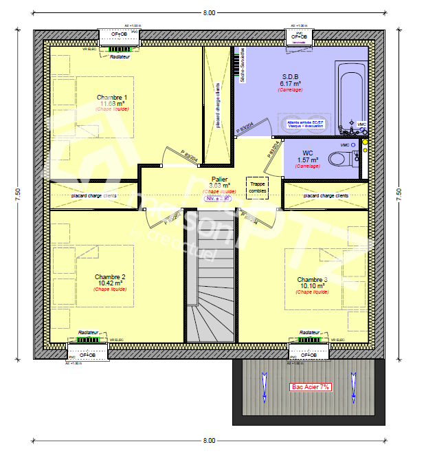
À l’étage, le palier dessert trois chambres confortables avec emplacement placards prévus, une salle de bains familiale et des toilettes séparées, pour un quotidien fluide et organisé.
Visuels non contractuels. Maison conforme à la règlementation RE 2020 sous réserve de l’implantation et de l’exposition du projet de construction sur le terrain.