Modèle Riva + 76 m² - 3 chambres
Riva +
À partir de 148 950€*
Vous aimez ce modèle de maison ?
Nos experts se tiennent à votre disposition pour échanger avec vous !
Nous contacterUn projet ? Ce modèle est disponible avec terrain
Voir nos offresCaractéristiques
Surface : 76 m²
Nombre de chambres : 3
Nombre de salle(s) de bains : 1
Garage : oui
Type de bien
Maison
Surface min.
76 m²
Consommation énergétique
50
Nombre de pièce(s)
4
Nombre de chambre(s)
3
Nombre de salle(s) de bain
1
Garage
oui
50
Envie de découvrir *votre future maison en détail ?*
Téléchargez le lien
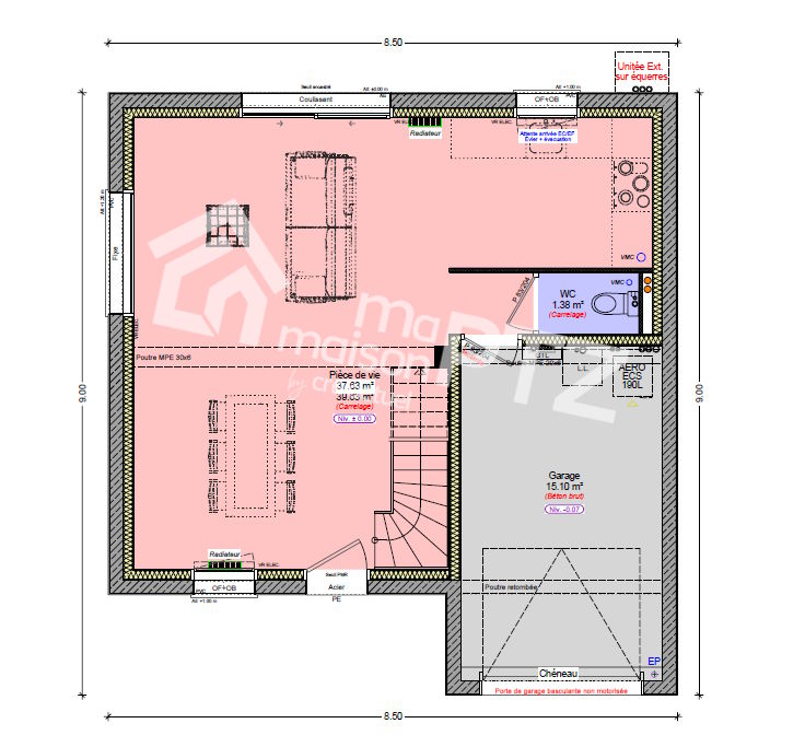
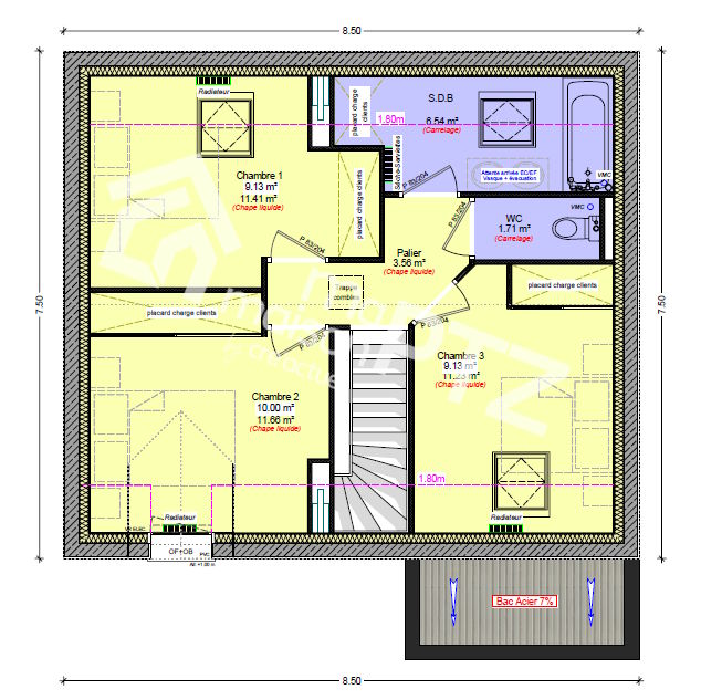
À propos de cette maison :
Le modèle Riva + est une maison à étage de 76 m², conçue pour allier accessibilité, fonctionnalité et confort.





Elle comprend trois chambres avec emplacements prévus pour placards, une salle d’eau, deux WC séparé, ainsi qu’une lumineuse pièce de vie de 37 m². On retrouve aussi un garage de 15m², pratique pour le rangement.
Compacte, bien pensée et accessible à tous, la maison Riva + est idéale pour une résidence principale durable et fonctionnelle.
Visuels non contractuels. Maison conforme à la règlementation RE 2020 sous réserve de l’implantation et de l’exposition du projet de construction sur le terrain.