Modèle Soléa mono 72 m² - 3 chambres
Soléa mono
À partir de 137 980€*
Vous aimez ce modèle de maison ?
Nos experts se tiennent à votre disposition pour échanger avec vous !
Nous contacterUn projet ? Ce modèle est disponible avec terrain
Voir nos offresCaractéristiques
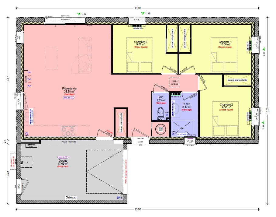
Surface : 72 m²
Nombre de chambres : 3
Nombre de salle(s) de bains : 1
Garage : oui
Type de bien
Maison
Surface min.
72 m²
Consommation énergétique
50
Nombre de pièce(s)
4
Nombre de chambre(s)
3
Nombre de chambre(s) au RDC
3
Nombre de salle(s) de bain
1
Garage
oui
50
Envie de découvrir *votre future maison en détail ?*
Téléchargez le plan
À propos de cette maison
Le modèle Soléa mono est une maison de plain-pied de 72 m², conçue pour allier accessibilité, fonctionnalité et confort, idéale pour une résidence principale, fonctionnelle et durable.




Cette maison neuve comprend trois chambres avec emplacements prévus pour placards, une salle d’eau, un WC séparé, ainsi qu’une lumineuse pièce de vie de 38 m².
Un garage de 17 m² vient compléter ce modèle, offrant un espace de stationnement ou de stockage.
Visuels non contractuels. Maison conforme à la règlementation RE 2020 sous réserve de l’implantation et de l’exposition du projet de construction sur le terrain.