CLEGUEREC – Alina 3 ch

Nos experts se tiennent à votre disposition pour échanger avec vous !
Caractéristiques
À propos de ce projet de construction de maison neuve
Votre future maison vous attend :
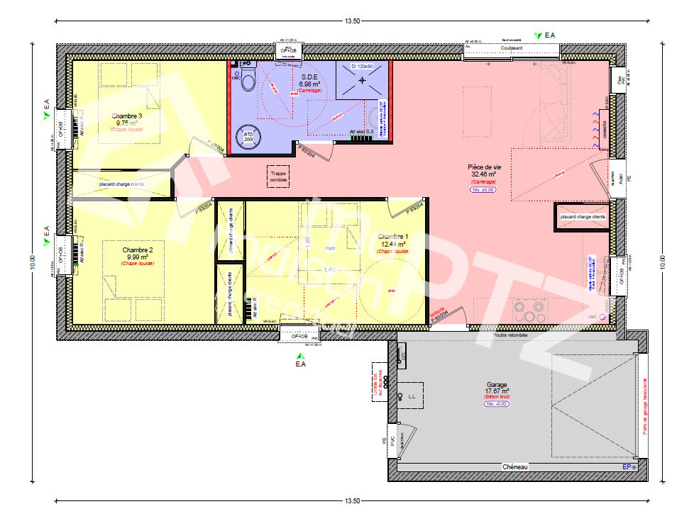
Sur un terrain de 451 m², venez découvrir ce projet de maison plain-pied de 71 m² comprenant :
- Une pièce de vie lumineuse de plus de 32m²
- Une salle d’eau avec WC
- 3 belles chambres
- Un garage attenant de 17 m²
Maison individuelle conforme à la norme RE 2020
Modèle PMR
Permis de construire prêt à être déposé
Prix à partir de 172 864 € TTC, frais de notaire, viabilisation, étude de sol, assurance dommages-ouvrage et frais d’agence inclus.
Ma maison PTZ by Cre’actuel, constructeur de maisons neuves dans les Côtes d’Armor, vous accompagne dans chaque étape de votre projet. Une nouvelle marque avec 20 ans d’expérience !



Faire construire à Cléguérec présente plusieurs avantages :
Un cadre de vie agréable
Située dans le Morbihan, la commune offre un cadre de vie entre ville et nature dans une ville dynamique et accueillante.
Un emplacement stratégique
Loudéac bénéficie d’une localisation privilégiée :
- À seulement 10 minutes de Pontivy, 50 minutes de Vannes et Lorient, 1h10 de Rennes
- À 50 minutes des plages (L’Armor Plage)
Un dynamisme local
- Des commerces et services de proximité (boulangeries, supermarchés, écoles, professionnels de santé, commerces, étang).
- Un cadre propice à la vie de famille avec des écoles et infrastructures adaptées.
- Présence de plusieurs restaurants et bars qui dynamisent la ville
Un environnement naturel préservé
Loudéac bénéficie d’un cadre rural paisible, avec beaucoup d’espaces verts mais également de commerces.
📞 Contactez-nous dès aujourd’hui pour concrétiser votre projet immobilier dans les Côtes d’Armor avec Ma maison PTZ.
« Visuels non contractuels. L’évolution de la réglementation peut engendrer une modification de surface et de tarif. »
Maison individuelle conforme à la norme RE 2020.
Disponibilité selon notre partenaire foncier.