TREDION – Soléa Mono
Nos experts se tiennent à votre disposition pour échanger avec vous !
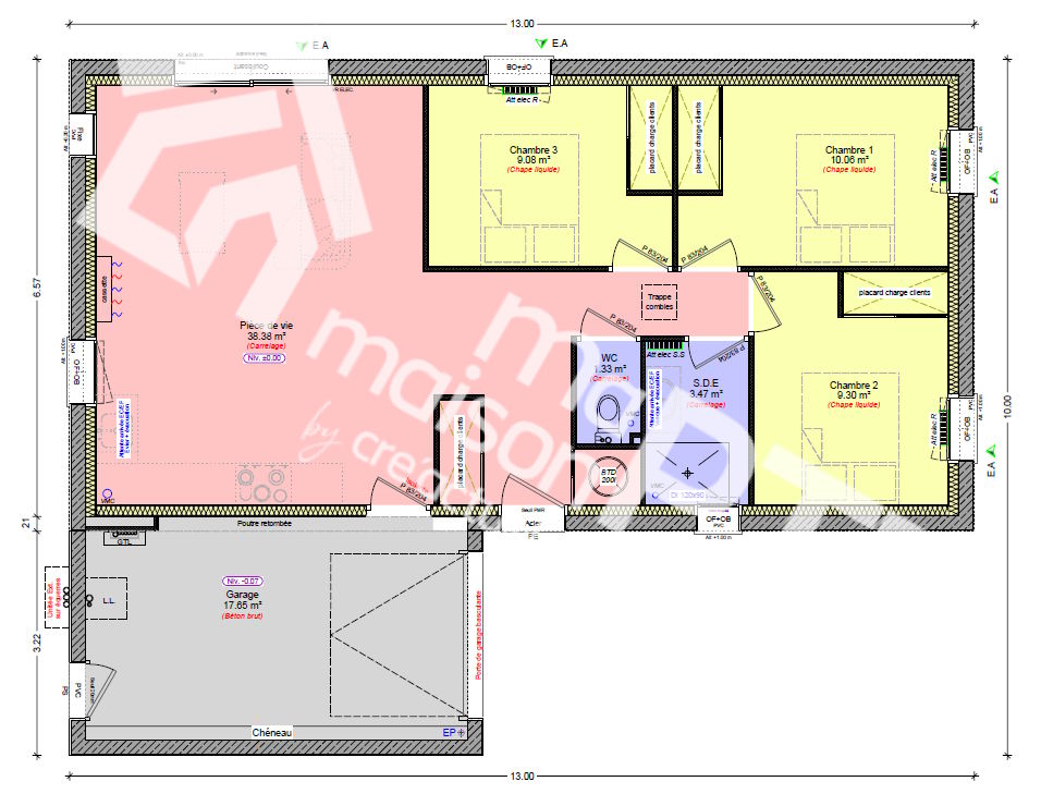
Caractéristiques
À propos de ce projet de construction de maison neuve
Votre future maison vous attend :
Sur un terrain de 462m², venez découvrir ce projet de maison plain pied
Une pièce de vie lumineuse de plus de 38m²
3 Chambres avec placards
Une salle d’eau avec douche italienne
WC indépendant
Un garage de 17 m²
Prix à partir de 191400€ TTC, frais de notaire, viabilisation, étude de sol, assurance dommages-ouvrage et frais d’agence inclus.
De nombreux autres modèles sont disponibles sur ce terrain.
Le prix comprend le carrelage au sol dans l’espace de vie et les pièces d’eau (salle d’eau, SDB). Il reste à la charge du client les revêtements de sol dans les chambres, la faïence murale et la peinture.
Avec Ma maison PTZ by cré actuel, vous possèderez une maison confortable :
- Des volumes bien pensés et des pièces lumineuses ; de grandes baies (avec seuils encastrés) sont prévues dans les espaces de vies.
- Vous aurez le choix entre un système de chauffage par Pac air-air (permettant ainsi de chauffer ou rafraichir le volume de votre maison très rapidement) ou un système Pac air-eau. La production d’eau chaude sera également pilotée par la PAC retenue avec un ballon d’eau chaude thermodynamique de 200 litres.
- Tous les volets roulants sont électriques et pilotables avec votre smartphone.
- Toutes nos portes intérieures ont une ouverture de 80cm et la hauteur sous plafond est de 2.50m.
- Nos salles d’eau du RDC sont (pour 95% de nos maisons) équipés de douche à l’italienne et nos SDB sont équipées soit de baignoire soit de receveurs 90/90 ou 90/120.
Ma maison PTZ by Cre’actuel, constructeur de maisons neuves dans le grand ouest : agences à Avranches(50), Yffigniac et Dinan(22), Bruz(35) et Locminé(56), vous accompagne dans chaque étape de votre projet. Une nouvelle marque avec 20 ans d’expérience !
Permis de construire prêt à être déposé.
- « Visuels non contractuels. L’évolution de la réglementation peut engendrer une modification de surface et de tarif. »
- Maison individuelle conforme à la norme RE 2020.
- Disponibilité sous réserve de notre partenaire foncier.
📞 Contactez-nous dès aujourd’hui pour concrétiser votre projet immobilier avec Ma maison PTZ.



Pourquoi construire votre maison à Trédion (56250) ?
Située au cœur du Morbihan, Trédion est une commune qui séduit par son cadre de vie calme et verdoyant, idéal pour les familles et les primo-accédants souhaitant faire construire dans un environnement authentique. À proximité de Vannes, Lizio, Bignan, Plumelin et Questembert, Trédion bénéficie d’une situation stratégique entre campagne et services essentiels.
Faire construire une maison neuve plain pied ou une maison familiale à Trédion permet de profiter d’un cadre naturel tout en restant proche des commerces, écoles et bassins d’emploi. C’est un secteur idéal pour un primo-accédant souhaitant devenir propriétaire avec l’aide du Prêt à Taux Zéro.
Trédion offre également un accès facile aux villes voisines et à l’agglomération vannetaise, ce qui en fait un emplacement recherché pour un projet de construction de maison dans le Morbihan.
Les communes autour de Trédion
Autour de Trédion, plusieurs communes offrent de belles opportunités pour construire : Vannes, Lizio, Bignan, Plumelin, Questembert ou encore Mauron. Ces localités conjuguent charme breton, services de proximité et tranquillité, offrant un environnement idéal pour faire construire avec un constructeur de maison dans le 56.
Trédion et ses alentours sont parfaits pour un projet immobilier avec un constructeur de maison dans le Morbihan, que vous souhaitiez investir ou devenir propriétaire pour la première fois.
Les avantages de construire avec Ma Maison PTZ by Cre’actuel
L’expertise d’un constructeur de maisons en Bretagne
Ma Maison PTZ by Cre’actuel est un constructeur de maisons en Bretagne reconnu pour son sérieux et son accompagnement personnalisé. Notre expertise en construction de maison dans le Morbihan permet de concevoir des projets adaptés aux terrains et aux besoins des familles.
Nous intervenons sur tout le département, proposant des solutions modernes et durables pour toutes les communes proches de Vannes et dans le centre Morbihan.
Des maisons modernes et personnalisables
Nos modèles sont pensés pour offrir confort, luminosité et performance énergétique. Que vous souhaitiez faire construire une maison individuelle dans le Morbihan ou un projet sur mesure, chaque plan est entièrement personnalisable.
Les maisons neuves plain pied sont particulièrement appréciées pour leur praticité et leur confort au quotidien.
Un accompagnement complet et sécurisé
Nous vous accompagnons à chaque étape : étude de financement, démarches administratives, dépôt de permis de construire, suivi de chantier et remise des clés. Cette approche garantit un projet sécurisé et sans mauvaises surprises.
Ma Maison PTZ est régulièrement citée parmi les meilleurs constructeurs maison Morbihan, grâce à la satisfaction de nos clients.
Un projet accessible aux primo-accédants
Toutes nos maisons peuvent être éligibles au Prêt à Taux Zéro, un dispositif idéal pour un primo-accédant. Faire construire avec un constructeur de maison dans le 56 devient ainsi plus simple et abordable.
Des maisons conformes à la RE2020
Toutes nos constructions respectent la réglementation RE2020, garantissant isolation renforcée, économies d’énergie et confort thermique toute l’année.